SCREEN SEPARATOR

SCREEN SEPARATOR INTRODUCTION:

STAR TRACE Screen Separator is a unique particle size gradable separator designed for greater capacity per meter square of screening area & over size material discharge with relatively much less percentage fines than other screening machines.

Our company has been a leader in manufacturing and supplying a vast variety of screen separator to various industries across the country. We offer horizontal screen separator and circular screen separator which come with many special features. Our screen separator is known for their high performance, innovative designs, and affordable prices making them extremely popular among customers.

WORKING PRINCIPLE:

The motivation is through a unbalanced motor with a double extended shaft, fitted at both ends with eccentric weights .The top weight on the motor shaft rotates in a plane close to the center of the mass of assembly. Rotation of the top eccentric weights creates vibration in the horizontal plane, which causes material to move across the screen cloth to periphery increasing the horizontal throw, causing oversize material to discharge at a faster rate.

The bottom eccentric weight rotates below the center of mass creating tilt on the screen giving vibration in vertical and tangential plane. Increasing the vertical component of motion, this promotes turnover of material on the screen surface helping maximum quantity of under size material to pass through the screen. Rugged Springs placed over the circular motor base amplifies the vibration.

The top weight on the motor shaft rotates in a plane close to the centre of the mass of assembly. Rotation of the top eccentric weight creates vibration in the horizontal plane which causes material to move across the screen cloth to periphery. Increasing the top eccentric mass, increases the horizontal throw, causing oversize material to discharge at a faster rate. The bottom eccentric weight rotates below the centre of mass, creating tilt on the screen, giving vibration in vertical & tangential planes. Increasing the vertical component of motion, this promotes turnover of material on the screen surface helping maximum quantity of under size material to pass through the screen. The vertical motion also minimizes blinding of screen by "near size" particles.


APPLICATIONS OF SCREEN SEPARATOR

Screen Separator
  • Mineral processing.
  • Ceramic.
  • Food & Beverages.
  • Abrasive Industries.
  • Chemical.
  • Pulp & Paper.
  • Rubber Industry.
  • Pharmaceutical.
  • Animal Feed.
  • Effluent & Waste.
  • water treatment.
  • Paint & Pigments.
  • Sand & Gravel.
  • Petroleum.
  • Sugar & syrup.

Dry Separator:

Products Descriptions
Chemicals Polyvinyl chloride, melanin, phenolics, cellulose acetate, polystyrene, detergents, caustic soda flake, alum etc.,
Pulp &Wood Products Wood chips, particle Board and wood Flour
Animal Feed Scalping of foreign material, removal of bone chips etc.,
Grains Cleaning, Grading of Agricultural seeds and grains like rice, wheat, jowar etc.,
Cosmetic For removing foreign particles from powders.
Foods recovery of rice from hulls, coffee beans from chaff, and tea from bags.

Dry Classification:

Precise division of a dry material into sized fractions.

Products Descriptions
Tea Grading of CTC andOrthodox tea up to 8 grades.
Petrochemicals Sizing and reclaiming catalyst pellets etc.,
Food Coffee powder, ground coffee, dried milk, sugar, salts, spices, cashew nuts, flour, maida, dehydrated onion powder.
Pharmaceuticals Aspirin, Boric acid, Epsom salts, sodium bicarbonate, tablet dedusting & granulations etc.,
Fertilizer Granulated mixes, potash, catalyst, urea ammonium, nitrate, sulphates and single super phosphates etc.,
Ceramics & Abrasives Cardorundrum, alumina oxide and blasting silica
Pigments Grading of powders.

Solid/Liquid Separator:

Dewatering and removal of solid particles from Liquid medium.

Products Descriptions
Paper & Pulp Screening of adhesives, Starch solutions, Paper coatings and Black Liquor. Removal of Pulp and other contaminants from clean & back water. Sizing, scalping of wood chips without any clogging problem.
Food Separation of bagasse from sugar melt, slurry cum fiber from starch slurry, clarifying of chocolates liquor, removal of pulp from juice etc.,
Ceramics Clarifies body and glaze slips for witeware etc.,
Chemicals Separation of salt from glycerin, clarifying of Polyvinyl acetate emulsions, paints & enamels etc.,
Minerals Separation of impurities from kaolin slurry prior to centrifuging, classification of silica to remove iron impurities etc.,
Waste Disposal Clarification of white water from pulp mills, cannery wastes paunch manure from meat packing, distillery slop etc.,
Paints and Pigments Removal of foreign particles from liquid medium.

Benefits OF Screen Separator

Screen Separator Features

The following are the benefits of Screen Separator are:

  • Low power consumption.
  • Varied range of applications.
  • High processing rate per unit area of screen.
  • Accurate separation.
  • Minimum screen building.
  • Screening up to 200 mesh.
  • Ball tray for anti blinding.
  • Modular design to yield up to 8 predetermined fractions.
  • Dust-free and noiseless processing within closed circuit can be achieved.

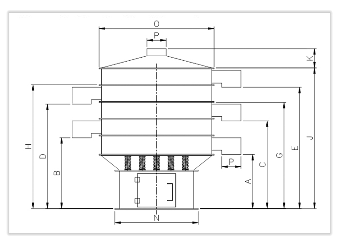
Specification Of Screen Separator

Screen Separator Specification
MODELS AND SPECIFICATION
Model OD
mm
Motor
HP
A
mm
B
mm
C
mm
D
mm
E
mm
J
mm
K
mm
P
mm
N
mm
G
mm
H
mm
Mg20 455 0.25 375 458 541 624 707 797 140 100 435 630 714
Mg26 610 0.50 400 511 622 733 844 965 110 152 508 743 854
Mg34 820 1.0 420 580 740 900 1060 1240 138 152 600 920 1080
Mg50 1220 2.0 640 805 970 1135 1300 1505 210 203 920 1175 1340
Mg62 1525 2.0/2.5 660 872 1084 1296 1508 1746 250 203 1085 1322 1534
Mg74 1830 2/5.0 690 925 1160 1395 1630 1885 254 254 1265 1415 1650
Adjustment of Top & Bottom weights in accordance with the diagrams
adjustment1

0o Lead - Average material will be thrown straight material travel radially.

adjustment2

15o Lead Average materials will begin to spiral material Travel Takes
Longer Time.

adjustment3

35o Lead Average materials will give maximum screening pattern material
moves in spiral design.

adjustment4

90o Lead Over size materials does not discharge material tends to
stay at center.

screen separator screen separator manufacturers screen separator suppliers how does a screen separator work screen separator sale screen separator china screen separator manufacturers india screen separator capacity screen separator design screen separator wiki screen separator globally gyratory screen separator gyratory screen separator manufacturers gyratory screen separator suppliers how does a gyratory screen separator work gyratory screen separator sale gyratory screen separator china gyratory screen separator manufacturers india gyratory screen separator capacity gyratory screen separator design gyratory screen separator wiki gyratory screen separator globally


Contact Star Trace

Corporate Headquarters

Star Trace Pvt. Ltd,Chennai
Mr. P. R. Maheswaran
#7, Jeevanandham street,
Redhills,Chennai - 600 052,
Tamil Nadu, India.

Works

No: 11,
Moorthasa Ussian
Sahib Street, Redhills,
Chennai - 600 052.
Call Us 0091- 9841015456
Phone 0091- 044 26418456,
0091- 044 26419439.
0091- 044-26323356,
0091- 044-26321356.
TeleFax 0091-044-26419439
Mobile 0091-9380521567,
0091-9380521576
Email ID sales@startrace.in
CIN NO: U51103TN1998PTC041085